物件情報
【新築一戸建】ヴァリディエ深江南町1丁目Ⅱ(1号地)

~閑静な芦屋川風致地区に隣接する住まい~ | |
物件種目 | 新築一戸建 |
---|---|
所在地 | 神戸市東灘区深江南1丁目 |
交通 | 阪神本線「芦屋」駅徒歩12分 |
価格 | 成約御礼 |
特長 | 全4区画! 各号地建物床面積が約36坪~約40坪とゆとりある空間です。 ~詳細写真は、現地外観写真・周辺環境写真です~ |
物件の詳細
土地面積 | 91.92㎡(1号地) | 私道面積 | 別にセットバック部分0.26㎡(1号地) |
---|---|---|---|
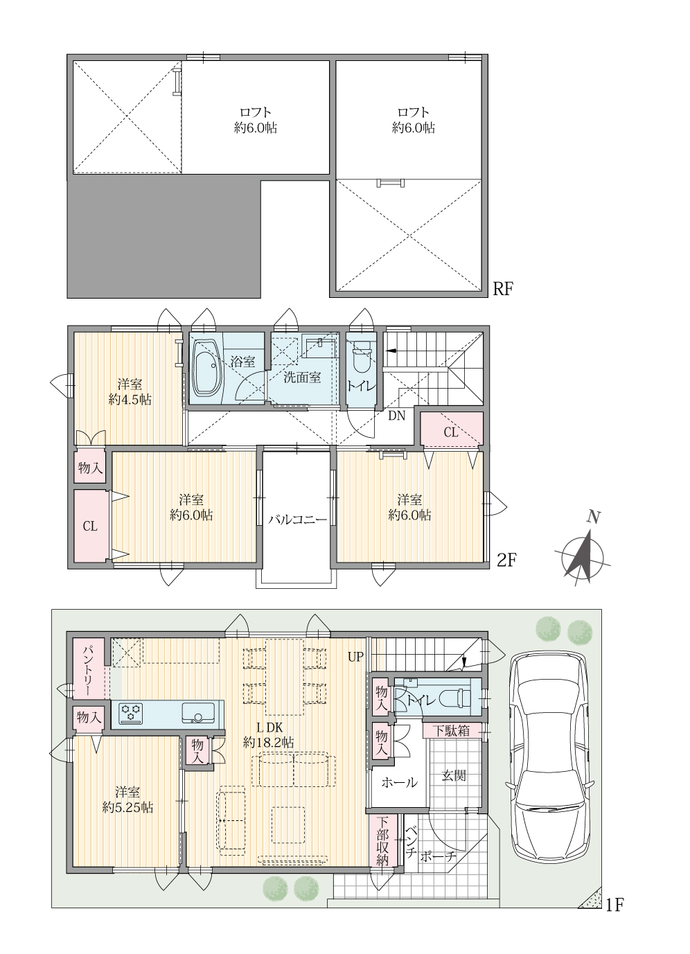
建物面積 | 122.15㎡(1号地※ロフト面積含む) | ||
建物構造 | 木造スレート葺2階建 | 間取り | 4LDK+2ロフト |
土地権利 | 所有権 | 地目 | 宅地 |
都市計画 | 市街化区域 | 用途地域 | 第1種住居地域 |
建ぺい率 | 60% | 容積率 | 200% |
築年月 | 新築(平成26年4月完成) | 駐車場 | 1台(1号地) |
現況 | 完成 | 引渡日 | 即時 |
接道状況 | 東側公道約4mに約6.9m接道 | ||
その他法令 | 第5種高度地区・深江駅南地区計画・深江地区まちづくり協定 | ||
設備 | 電気・ガス・上下水道 | ||
備考 | (1号地) 南側通路につき、日当り通風良好。 約6帖の大きなロフトが2つあります! ハイクオリティな標準設備仕様!!。 (1618ユニットバス・床暖房・LOW-Eガラス・エコジョーズ給湯器・LED照明・間接照明等) 建築確認番号:第H25確認建築CIAS01241号 |
- 外観全体
- 北側より
- 前面道路より
- 2・3号地より
- 1号地間取り
- 学校区:東灘小学校
- 学校区:本庄中学校
- 阪神芦屋駅徒歩12分
- 芦屋川写真
- 芦屋公園写真
- テニスクラブ写真
- コープミニ



