物件情報
【中古戸建】西宮市石刎町
| 平成26年3月築!! 駅近中古一戸建 カースペース2台 6LDK | |
| 物件種目 | 中古戸建 |
|---|---|
| 所在地 | 西宮市石刎町 |
| 交通 | 阪急甲陽線「苦楽園口」駅 徒歩4分 |
| 価格 | 8,680万円(税込) |
| 特長 | 令和7年9月一部リフォーム済み!! クロス、CF貼替・畳表替・襖、障子貼替 2階ウォシュレット新調・モニター付インターホン新調 ハウスクリーニング等 |
物件の詳細
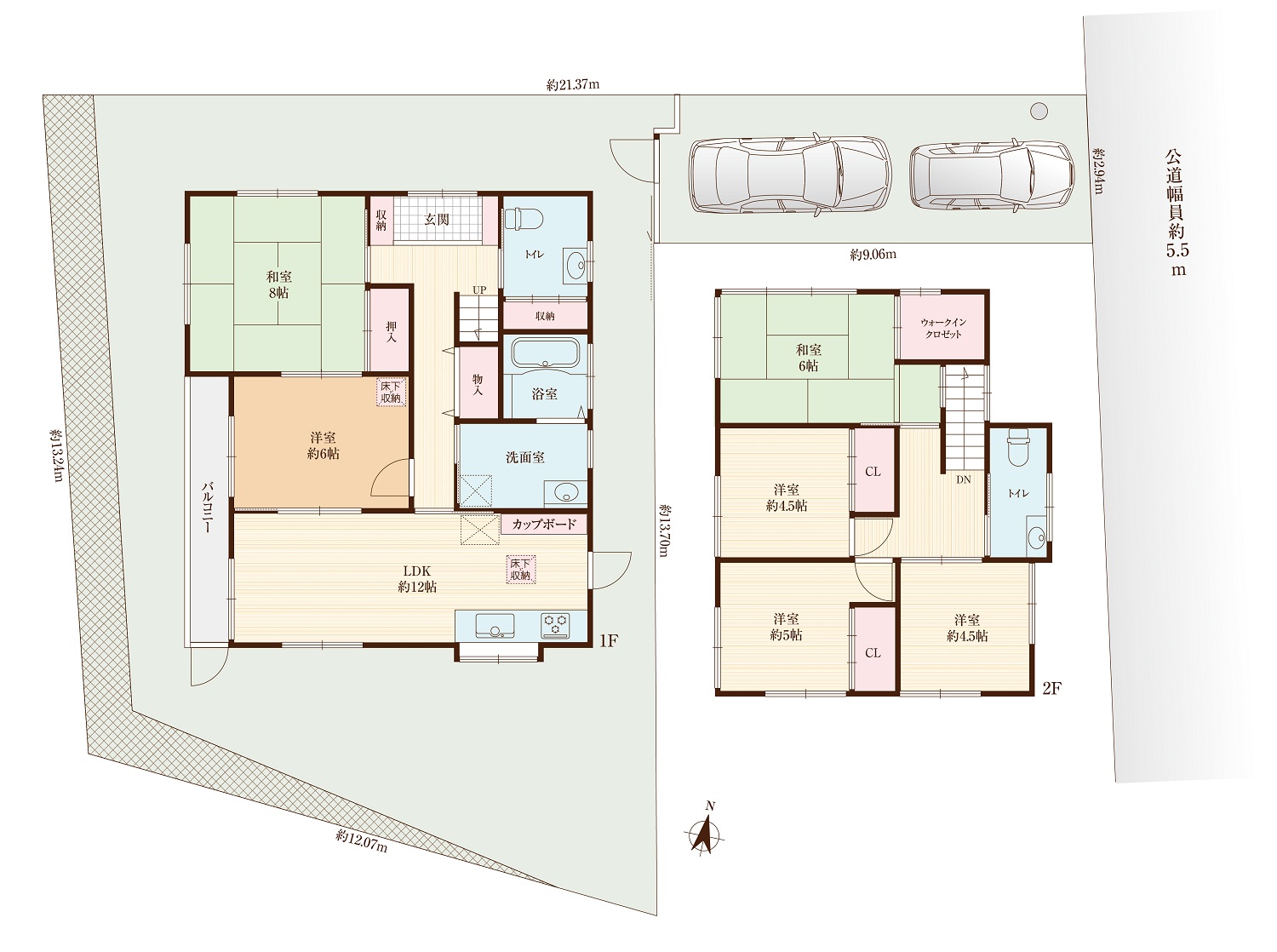
| 土地面積 | 204.60㎡ | 私道面積 | |
|---|---|---|---|
| 建物面積 | 1階:69.56㎡ 2階:50.50㎡ 合計120.06㎡ | ||
| 建物構造 | 木造スレート葺2階建 | 間取り | 6LDK |
| 土地権利 | 所有権 | 地目 | 宅地 |
| 都市計画 | 市街化区域 | 用途地域 | 第一種中高層住居専用地域 |
| 建ぺい率 | 60% | 容積率 | 200% |
| 築年月 | 平成26年3月 | 駐車場 | カースペース2台 |
| 現況 | 空家 | 引渡日 | 相談 |
| 接道状況 | 東側公道約5.5mに約2.94m接道 | ||
| その他法令 | 第2種高度地区 法第22条区域 宅地造成規制区域 | ||
| 設備 | 電気・ガス・上下水道 | ||
| 備考 | 充実の設備 (システムキッチン・カップボード・広々トイレ2箇所) |
||
- 外観1
- 外観2
- 外観 カースペース
- 外観 前面道路
- 外観 玄関
- 玄関
- 玄関 収納
- 1階 和室 収納
- 1階 和室8帖
- 1階 LDK約12帖
- ダイニング リビング
- 1階 洋室 リビング
- LDK 床下収納
- 1階 洋室約6帖
- 1階 トイレ 手洗い
- 1階 トイレ 収納
- 浴室
- 洗面室 室内洗濯機置き場
- 洗面化粧台
- 階段下収納
- キッチン
- カップボード
- 2階 ホール
- 2階 洋室約5帖 収納
- 2階 洋室約5帖
- 2階 洋室約5帖
- 2階 洋室約6帖
- 2階 洋室約6帖 収納
- 2階 和室約6帖
- 2階 和室約6帖 収納
- 2階 トイレ
- 2階 トイレ 手洗い
- 1階 物干しスペース
- 石刎町間取り





































